• Chartered Surveyors & Property Professionals

Boston Road

 

Sold STC

land - building plot for sale in Spilsby, Lincolnshire

Key Features

  • Building Plot with Direct Road Access
  • Full Planning Permission for a 3 Bedroom Detached Dwelling
  • Intergrated Garage
  • Set back from the road
  • Services understood to be on public highway
  • Sought-after Market Town location
  • Within walking distance of amenities

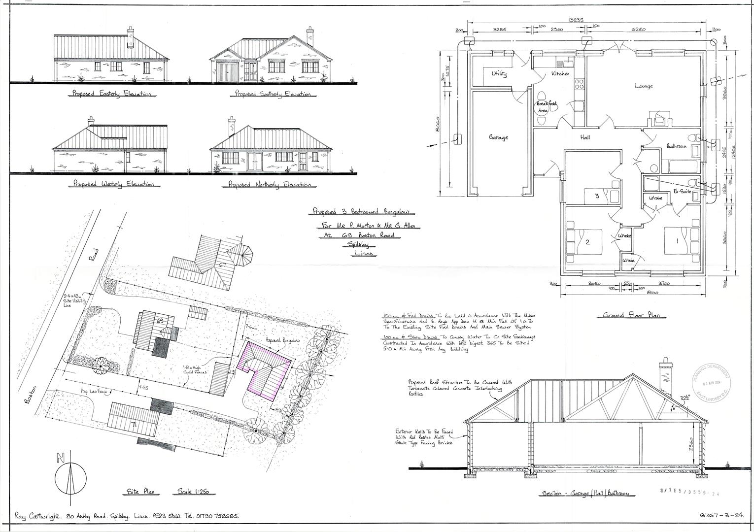
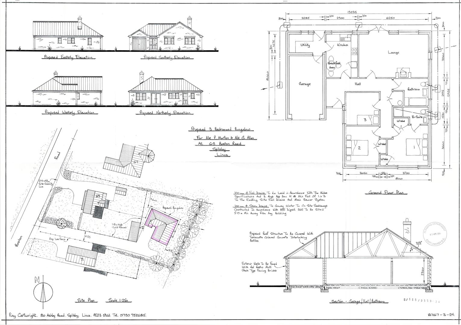
Willsons are pleased to be able to offer for sale this site with full planning permission situated in the popular Market Town of Spilsby, in the eastern part of Lincolnshire

Full planning permission has been granted for this area of land which is set back from the highway however offers direct road access and a building plot to accommodate a three bedroom dwelling with an integral garage.


Full Planning Permission -

Full planning permission has been granted by East Lindsey District Council for the “erection of a bungalow with attached garage and the construction of internal access road.”

The Planning Application Number is S/165/01669/24 and the permission was granted on 7th January 2025.

All relevant documents relating to the Planning Application can be viewed on East Lindsey District Council website (https://www.e-lindsey.gov.uk/Planning).

Location & Access -

Situated on Boston Road, Spilsby, the land can be found to the rear of 69 Boston Road, with direct road access to the right hand side of the property via a 5-bar gate. The location can be identified by a “For Sale” board close to the gate.
What3words///quarrel.prepped.angry

Services -

All mains services are believed to be available within the public highway. Prospective purchaser should make their own enquiries as to the availability of services.

Boundaries -

The boundaries of the plots are shown on the plans submitted with the planning application. The exact position has been pegged out on site. The purchasers will be responsible for the erection of a suitable boundary fence within 6 months.

The purchaser should be deemed to have full knowledge of all boundaries and neither the vendor nor the selling agent will be responsible for defining the boundaries nor their ownership.

Plot Dimensions (approximate) -

Plot: Average Width 31m. Average Length 20m.

Land & Access: Average Length 45m. Min Width 4.3m Max Width 5m.

Sporting, Timber & Mineral Rights -

Sporting, timber and mineral rights are included in the sale insofar as they are owned, subject to statutory exclusions.

HM Land Registry -

Currently, the development site is not registered with HM Land Registry.

Restrictions, Easements, Wayleaves & Rights of Way -

All the land is sold subject to and with the help and benefit of all existing rights, including rights of way whether public or private, light, support, drainage, water and electricity supplies and other rights, easements, and all wayleaves whether referred to or not in these particulars. The adjoining property 69 Boston Road retains the right to discharge foul waste across the area of plot.

Viewing -

The site may be viewed at any reasonable time during daylight hours providing a set of particulars are to hand and you have made contact with our Alford Office to leave your contact details. When viewing, interested parties are responsible for their own safety and view at their own risk.

Local Authorities -

Lincolnshire County Council
Newlands, Lincoln LN1 1YW. Tel: 01522 552222.

East Lindsey District Council
The Hub, Mareham Road, Horncastle, Lincolnshire, LN9 6PH.
Tel: 01507 601111

Anglian Water – Tel: 0345 791 9155
Western Power – Tel: 0800 096 3080
British Gas – Tel: 0330 100 0056

Anti-Money Laundering -

In accordance with the most recent Anti Money Laundering legislation the purchaser will be required to provide proof of identity and proof of funds to the selling agent once an offer has been submitted and accepted (subject to contract) prior to solicitors being instructed.

VAT -

It is understood that the sale does not attract VAT.

Directions -

From the A16 Louth to Boston road, on reaching Spilsby, turn onto the B1195 towards the town, after 350 metres, turn right into Boston Road. Continue on Boston Road for 500m. The building plot can be found on the left after 700m.
What3words///quarrel.prepped.angry

Download Brochure

Download EPC

How much is your property or land worth?

Free, no-obligation valuation for all properties or land in Lincolnshire and surrounding areas

Book a valuation