• Chartered Surveyors & Property Professionals

Horncastle Road, Roughton Moor

 

For Sale £400,000

land - development site for sale in Woodhall Spa

Key Features

  • Development Site for 2 Superior Dwellings
  • Horncastle Road, Woodhall Spa
  • Asking Price: £400,000

This is a rare opportunity to purchase a development site extending to 0.56 of an acre (approx.) with the benefit of Full Planning Permission to build two generous individual properties in an ideal location being approximately 1 mile from the centre of Woodhall Spa

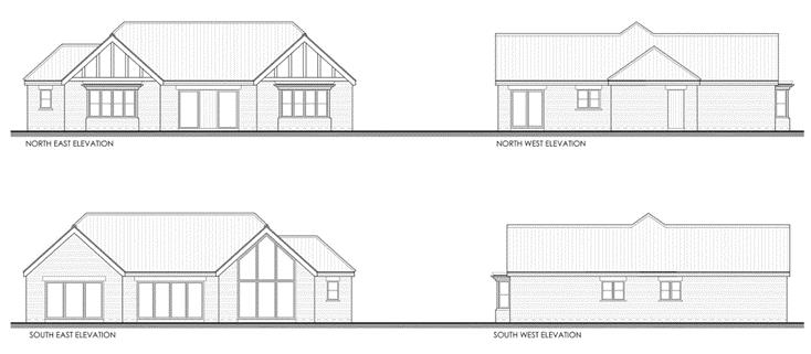
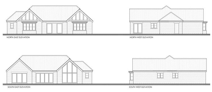
Plot 1 – Detached Dormer 3 Bedroom Property with Attached Double Garage

Plot 2 – Detached 3 Bedroom Bungalow with Detached Double Garage


LOCATION -

The site is situated on the eastern side of the village of Woodhall Spa (within the Parish of Roughton Moor) o Horncastle Road. The location should be identified by a “For Sale” board at the entrance to proposed roadway down to the development site.
What3words: alpha.surprise.warmers

TENURE & POSSESSION -

The Freehold interest in the property is being offered for sale with full vacant possession upon completion.

BOUNDARIES -

The majority of the boundaries are demarcated by fences, hedges or are pegged out on site. The purchaser should be deemed to have full knowledge of all boundaries and neither the vendor nor the selling agent will be responsible for defining the boundaries nor their ownership.

PLANNING -

Full planning permission has been granted by East Lindsey District Council for “erection of 1no. dormer bungalow and 1no. bungalow with garages and construction of a vehicular access”. The Planning Application Number is S/141/01206/22, dated 27th January 2023

All relevant documents relating to the Planning Application can be viewed on East Lindsey District Council website (https://www.e-lindsey.gov.uk/Planning).

SITE DIMENSIONS (approximate) -

Developable Area:
Width 30m (average). Length 72m (average). Area 0.56 of an acre (approximately).

Access Road Area:
Width 5m widening to 7.5m (average). Length 60m (average).

ACCESS ROAD -

The developer will be required to construct the access road leading to the site, which will also be used by the vendors to gain access to the rear of their existing property (please see restrictions, easements, wayleaves & rights of way).

Please contact Willsons for copies of detailed drawings of the access etc. as prepared by Hydrock consultants Ltd.

HM LAND REGISTRY -

The development site is not currently registered by HM Land Registry.

SERVICES -

The vendor has made preliminary enquiries to confirm that there is adequate capacity in the local electricity and clean water networks to support the development. The vendor has also established an agreement in principal for a foul water connection to the Anglian Water sewer main. The vendor can provide further details for information purposes however the purchaser shall be responsible for making their own enquires as to the availability of services.

RESTRICTIONS, EASEMENTS, WAYLEAVES & RIGHTS OF WAY -

The access road area is being sold subject to a Right of Way over the vehicular access in favour of the vendor, allowing them access to the rear of their property which can be used at all times and for all purposes. The site is crossed by an 2 underground pipes in favour Anglian Water, believed to be foul sewer as shown on some of the architect plans. The vendor will retain a 1m strip of land on the north eastern boundary due to possibility of future development.

The land is sold subject to and with the benefit of all existing rights, including rights of way, whether public or private, and whether or not mentioned in these particulars of sale.

VIEWING -

Viewing is by appointment only due to there being no direct access point currently, therefore please contact the Skegness Office to arrange an appointment and a set of these particulars should be to hand when viewing. Anyone viewing is responsible for their own safety and should take care of any potential hazards whilst upon the land.

ANTI MONEY LAUNDERING -

In accordance with the most recent Anti Money Laundering legislation the purchaser will be required to provide proof of identity and proof of funds to the selling agent once an offer has been submitted and accepted (subject to contract) prior to solicitors being instructed.

LOCAL AUTHORITIES -

Lincolnshire County Council
Newlands, Lincoln LN1 1YW. Tel: 01522 552222.

East Lindsey District Council
The Hub, Mareham Road, Horncastle, Lincolnshire, LN9 6PH.
Tel: 01507 601111

Anglian Water Western Power
Tel: 0345 791 9155 Tel: 0800 096 3080

ACCOMMODATION -

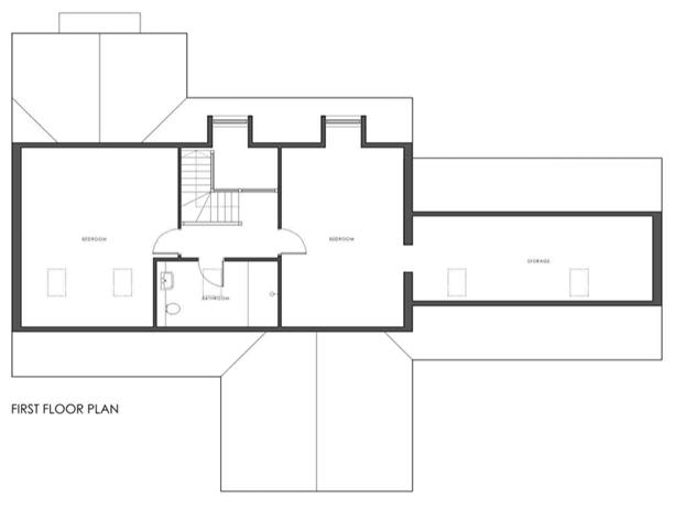
DORMER PROPERTY:

Ground Floor: -Entrance Hall, Study, Kitchen/dining, Sun Room, Utility, Wet Room, WC, Lounge, Master Bedroom with ensuite.

First Floor: – Landing. Bedroom, Bedroom, Bathroom

GARAGE:
Integrated garage.

ACCOMMODATION -

BUNGALOW:

Ground Floor – Entrance Hall, Kitchen/dining, Lounge, Bedroom with ensuite, Bathroom, Bedroom, Bedroom, Utility, WC.

GARAGE:
Detached garage

Download Brochure

Download EPC

How much is your property or land worth?

Free, no-obligation valuation for all properties or land in Lincolnshire and surrounding areas

Book a valuation