• Chartered Surveyors & Property Professionals

West Street

 

For Sale £229,950

3 bedroom house - end terrace for sale in Alford

3

1

1

Key Features

  • Spacious Town-House of approx 1,500 sq ft and High Ceilings throughout
  • Offered with No Onward Chain
  • Private Off-Street Parking
  • Available Fully Furnished, presenting a true Turn-Key Opportunity/Rental or Holiday Let
  • Large Outbuilding for ideal for Remote Office working, Games Room or Home Gym
  • South-Facing, Fully enclosed Courtyard Patio Garden with Apple Tree
  • Gas-Fired Central Heating and uPVC Double Glazing Throughout
  • Doorstep Access to the Amenities, Shops, Restaurants and Pubs
  • Contemporary Dining Kitchen with practical Ground Floor WC and Utility Space
  • Energy Performance Rating: 'E' Low Council Tax Banding 'A'

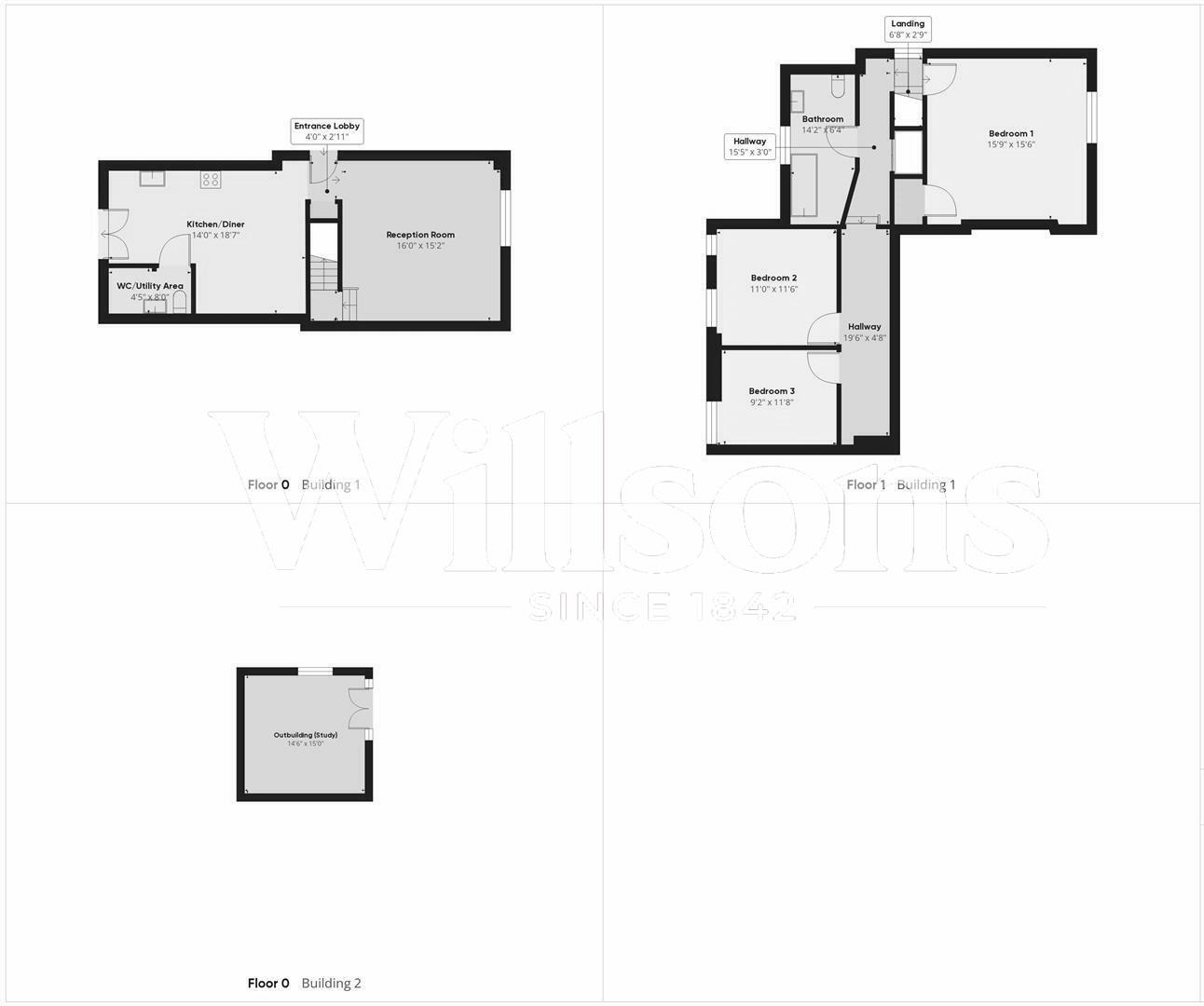
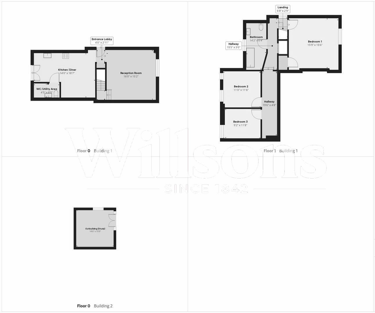
The well presented modern three bedroom townhouse offers nearly 1500 sq ft of space, with exceptionally high ceilings for a light and bright feel throughout. With private parking and detached large versatile office workspace, this property offers a modern dining kitchen with inbuilt appliances to include coffee machine and central kitchen island, generously sized master bedroom with two further bedroom and a bathroom with Victorian slipper bath. With south-facing courtyard garden and a central location providing direct access to the amenities of the Market Town of Alford, the property benefits from gas central heating and partial uPVC double glazing, is available fully furnished and is brought to the market with no onward chain.


Kitchen - 4.2m x 5.4m max (13'9" x 17'8" max)

‘L’-shaped kitchen with a range of wall and base units, central dining island with marble worktop, feature pendant lighting and four integrated storage cupboards below, integrated appliances by Siemens to include coffee machine, eye level wine refrigerator, oven and microwave, ceramic hob with Klarstein circular extractor hood over and wide pan and appliances draws below, seperate bank of wide draws to include crockery draw, integrated dishwasher, sink with 1.5 bowls and spray mixer tap, integrated full height fridge, solid wood worktops, two Victorian style radiators, partially tiled walls, laminate flooring and French doors to the rear courtyard.

Living Room - 4.6m x 4.8m (15'1" x 15'8")

An incredibly spacious living room with ceiling height of 3.3m, full span fitted media wall, Victorian style radiators, laminate flooring and large single glazed Georgian bar sash window to the front of the property.

Ground Floor WC & Utility - 2.4m x 1.3m (7'10" x 4'3")

Ground floor WC with Victorian style furniture to include free standing wash basin, space and plumbing for washing machine, partially tiled walls, stylish towel radiator, “kitchen maid” clothes airer and extractor fan.

Entrance Hall & Cloak Space -

Wooden external side door into open plan entrance hall with high ceiling and feature globe pendant cluster ceiling light, open fronted under stairs cloakroom with hanging space and built-in shelving.

Landing - 0.8m x 1.0m (2'7" x 3'3")

Split level landing with high level storage cupboard and loft access, feature globe pendant cluster ceiling light, carpeted flooring. and window with Georgian bar to the side aspects.

Master Bedroom - 4.9m x 4.7m (16'0" x 15'5")

Of generous proportions to include ceiling height of 2.6m, central wide chimney breast wall, over stairs fitted wardrobe with hanging rails (1.3m x 0.8), Victorian style radiator, carpeted flooring. and wide full-height single glazed Georgian bar sash window with low level windowsill.

Bathroom - 4.2m x 1.8m max (13'9" x 5'10" max)

With Victorian style bathroom furniture to include freestanding roll top slipper bath with mixer tap, hand cassette and wrap around chrome shower rail and curtain, wash basin with mixer tap, WC with traditional high level cistern, built-in shelving to one wall with concealed space housing gas combination boiler, wood grain effect vinyl cushion flooring and window with feature Georgian bar.

Bedroom Two - 3.5m x 3.3m (11'5" x 10'9")

With two tall feature Georgian bar windows with low sills, Victorian style radiator and carpeted flooring.

Internal Hallway - 1.1m x 1.4m max (3'7" x 4'7" max)

Split level hallway with carpeted flooring, two radiators, loft access, airing cupboard (1.1m x 0.9m) with decorative screen door and built-in shelving.

Bedroom Three - 3.4m x 2.7m (11'1" x 8'10")

With Victorian style radiator, loft access, carpeted floor and dual opening tall feature Georgian bar window with low sill.

Courtyard Patio Garden -

This fully enclosed, low maintenance south facing rear garden is set over two levels and extends to an area of traditional painted concrete paving slab patio, areas of gravel, corner wooden summerhouse, external lighting, wooden pedestrian gate to the side of the property leading to the parking to the rear of the garage and boundaries of fencing,

Office Outbuilding - 4.5m x 4.4m (14'9" x 14'5")

Generously sized brick-built outbuilding with high partially vaulted ceilings, independent fuse box, power and lighting, currently utilised as a home office workspace with uPVC French doors to the patio garden and wooden single glazed window to the side offering a dual aspect light bright workspace with hard wearing commercial grade vinyl flooring.

Parking Area -

An area of gravel to the rear of the garage provides private parking for the property.

Additional Comments -

The property is accessed over a private road to the west. The property holds a part flying freehold title above the property to the east. There is a pedstrian right of access across the rear of the property in favour of the property to the east.

Tenure & Possession -

The property is Freehold with vacant possession upon completion.

Services -

We understand that mains gas, electricity, water and drainage are connected to the property.

Local Authority -

Council Tax Band ‘A’ payable to Local Authority: East Lindsey District Council, The Hub, Mareham Road, Horncastle, Lincs, LN9 6PH. Tel: 01507 601 111.

Energy Performance Certificate -

The property has an energy rating of ‘E’. The full report is available from the agents or by visiting www.epcregister.com Reference Number: 8205-9104-2429-8596-2563

Directions -

From the main A16 between Louth and Boston, at the Ulceby Cross roundabout take the A1104 towards the town of Alford. Follow the main high street through Alford, passing the Manor House on the right. The property can be found on the right just after the Post Office Shop.
What3words///reserving.nurse.pegged

Viewing -

Viewing is strictly by appointment with the Alford office at the address shown below.

Download Brochure

Download EPC

How much is your property or land worth?

Free, no-obligation valuation for all properties or land in Lincolnshire and surrounding areas

Book a valuation